Aerial Rendering

Rendering of Tower within context of Christian Science Plaza

Tower Geometries

Tower Podium

Penthouse Terrace

Penthouse Terrace Section

Penthouse Terrace Plans

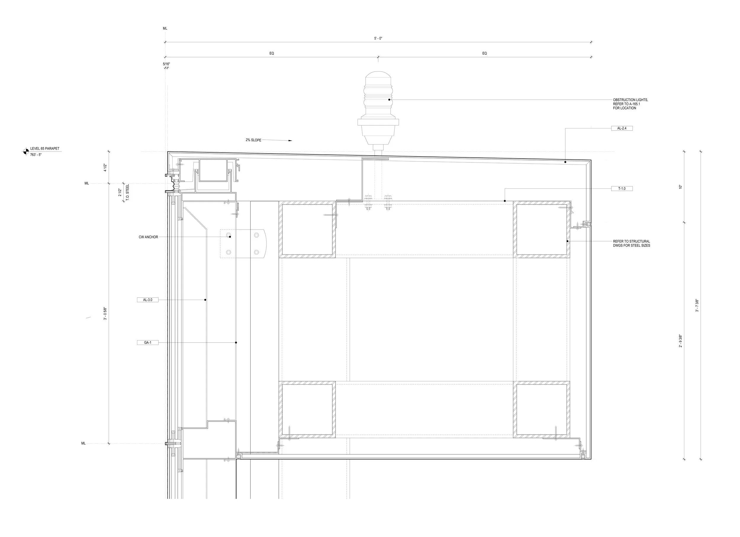
Tower Parapet Detail

Rendering of Tower (at right) within context of Back Bay, Boston

Hotel and Condo Tower

Office Project, 2014-2017
Pei Cobb Freed & Partners Architects LLP - New York, NY USA
Site: Boston, Massachussetts USA

In order to raise capital funds, the Church of Christ, Scientist sold two plots of land previously belonging to the mother church complex to private developers. A triangular plot received city approval for the construction of a 700-foot tower. In response to the triangular site, an adapted reuleaux triangle rises 61 stories.

A complex program of a hotel, condo, and ground-floor retail is achieved within a small footprint.  Hotel and Condo access and movement through the building are carefully choreographed.

Wrapped in a low, stone base, the podium ties the building in to the low-rise nature of surrounding buildings. The high performance glass of the curtain wall relates the tower to other high-rise developments of Back Bay.  Striations emphasise verticality and serve as locations to conceal operable windows to allow natural ventilation. Striations give way to balconies towards the top of the tower.

I was a core member of the team throughout Design Development, Construction Documents, as well as Construction Administration.  My role was on the design and development of core, penthouse, mechanical, roof levels, vertical transportation as well as façade maintenance. I coordinated with the associate architect in Boston as well as MEP, Structural, and Interior Design consultants. I oversaw the construction of the marketing model used for condo sales.