South Terrace Rendering

Shadow Study with New Addition Highlighted

North Entry Rendering

Western Approach Rendering

Eastern Approach Rendering

UCLA BUSINESS SCHOOL EXTENSION

Office Project, 2017
Pei Cobb Freed & Partners Architects LLP - New York, NY USA
Site: Los Angeles, California USA

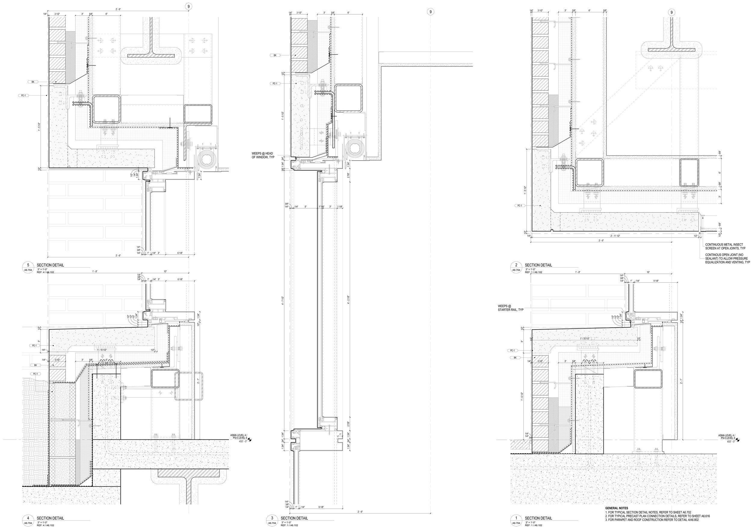
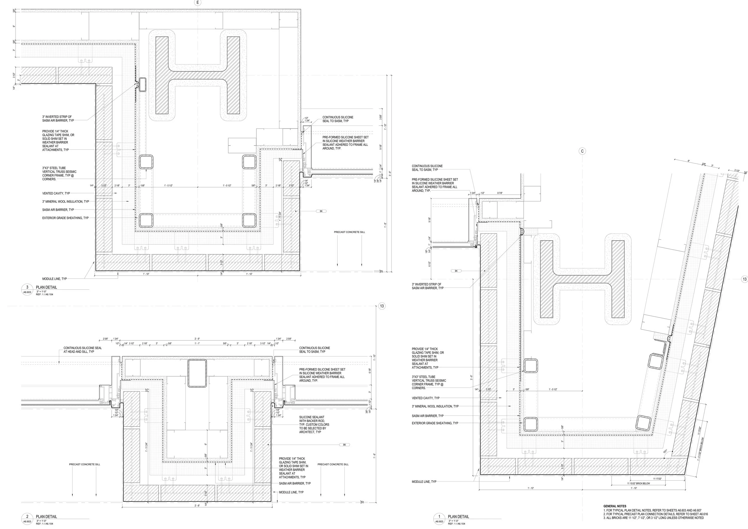
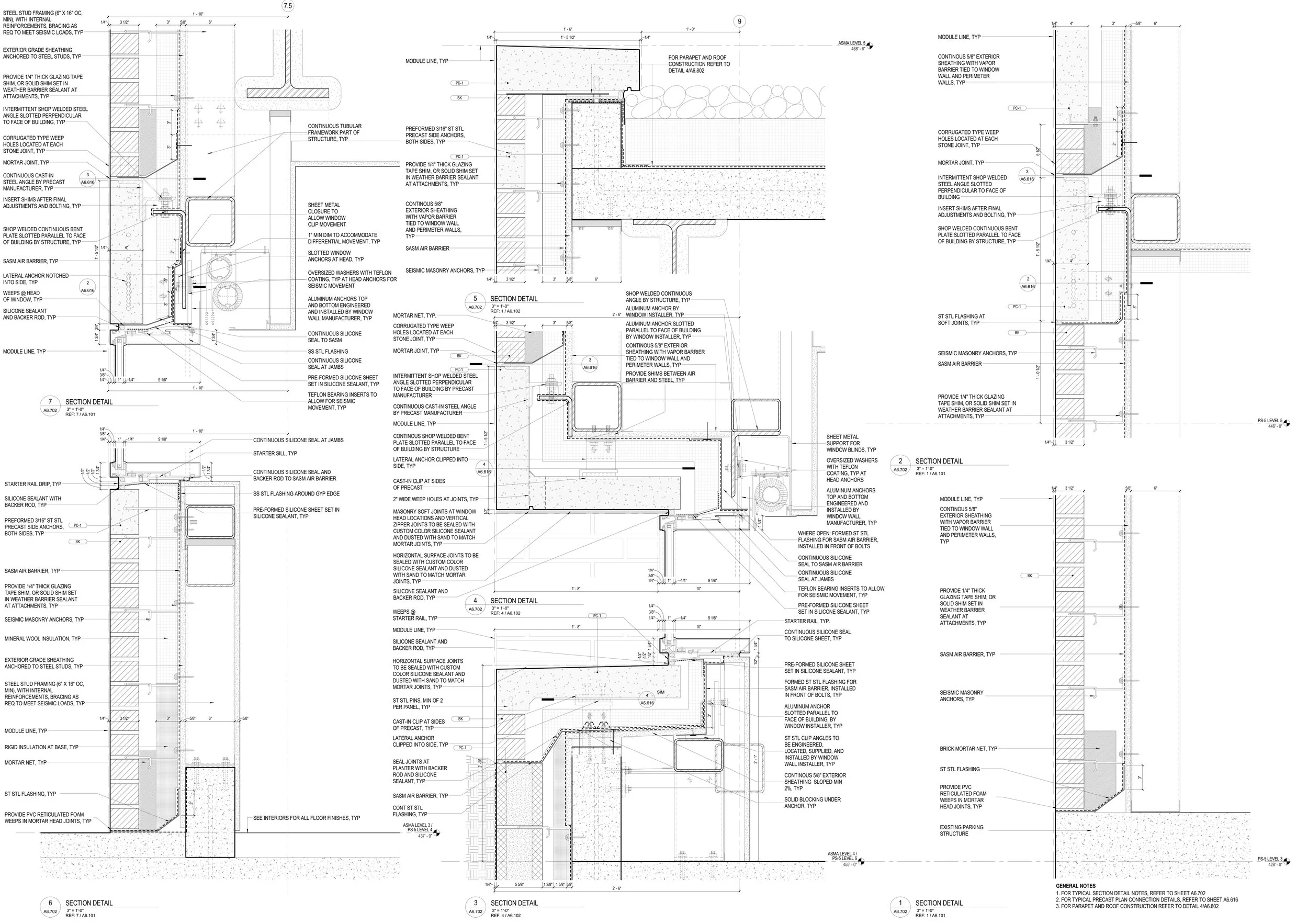
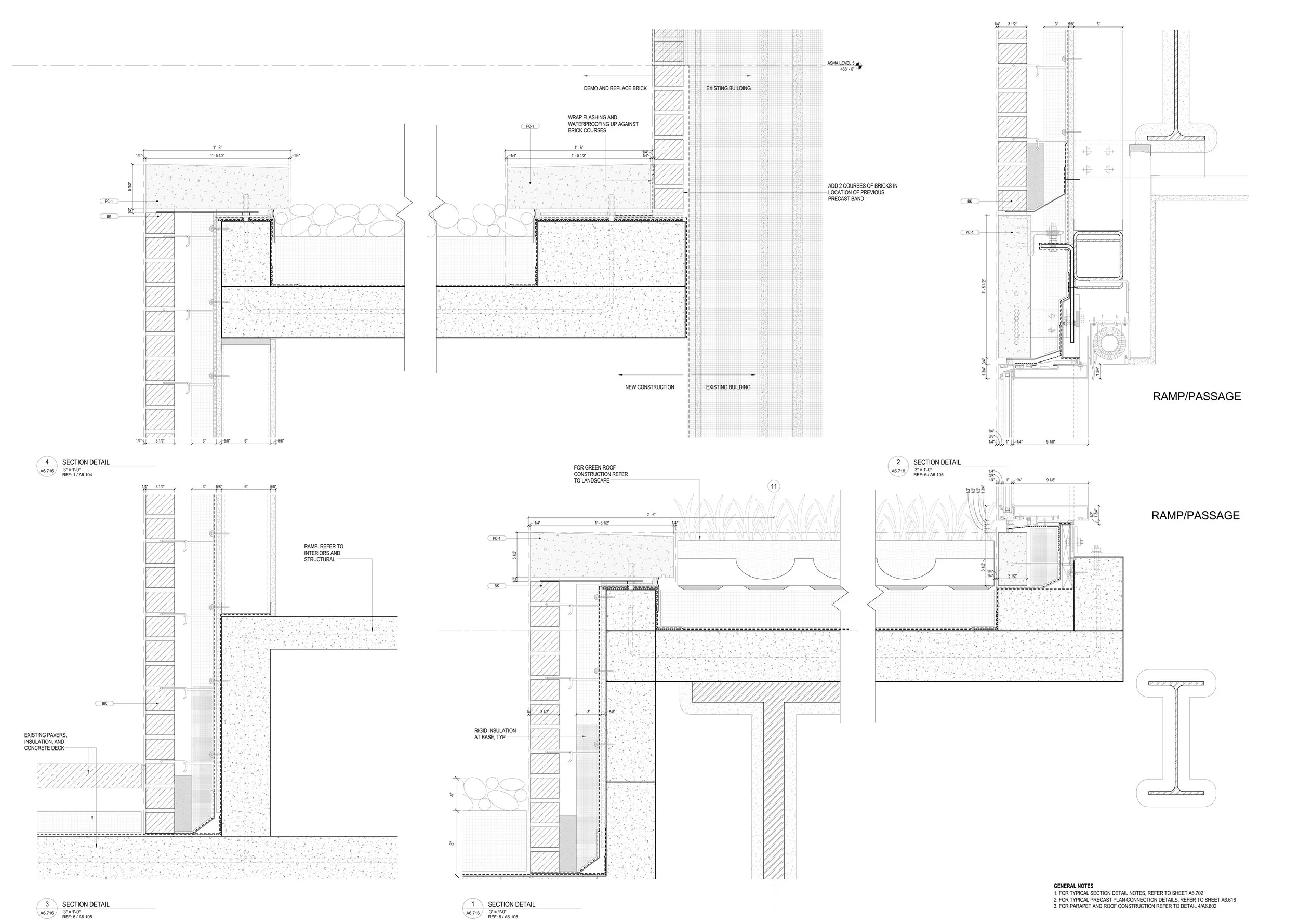
As part of an extension of the Anderson School of Management, UCLA hired Pei Cobb Freed & Partners to design an extension to their 1990 brick and precast concrete school.  Pei Cobb Freed & Partners came up with a unique solution of building the extension on top of an existing concrete parking structure nestled in a valley.  To counteract the inward-facing design of the original school, the extension was designed to look out and connect with the rest of UCLA's campus while mirroring the material elements of the original building.  Programming included a central atrium that connected one side of parking with the other side facing the central campus.  Public areas opened to terraces and green roofs and offices featured operable windows.

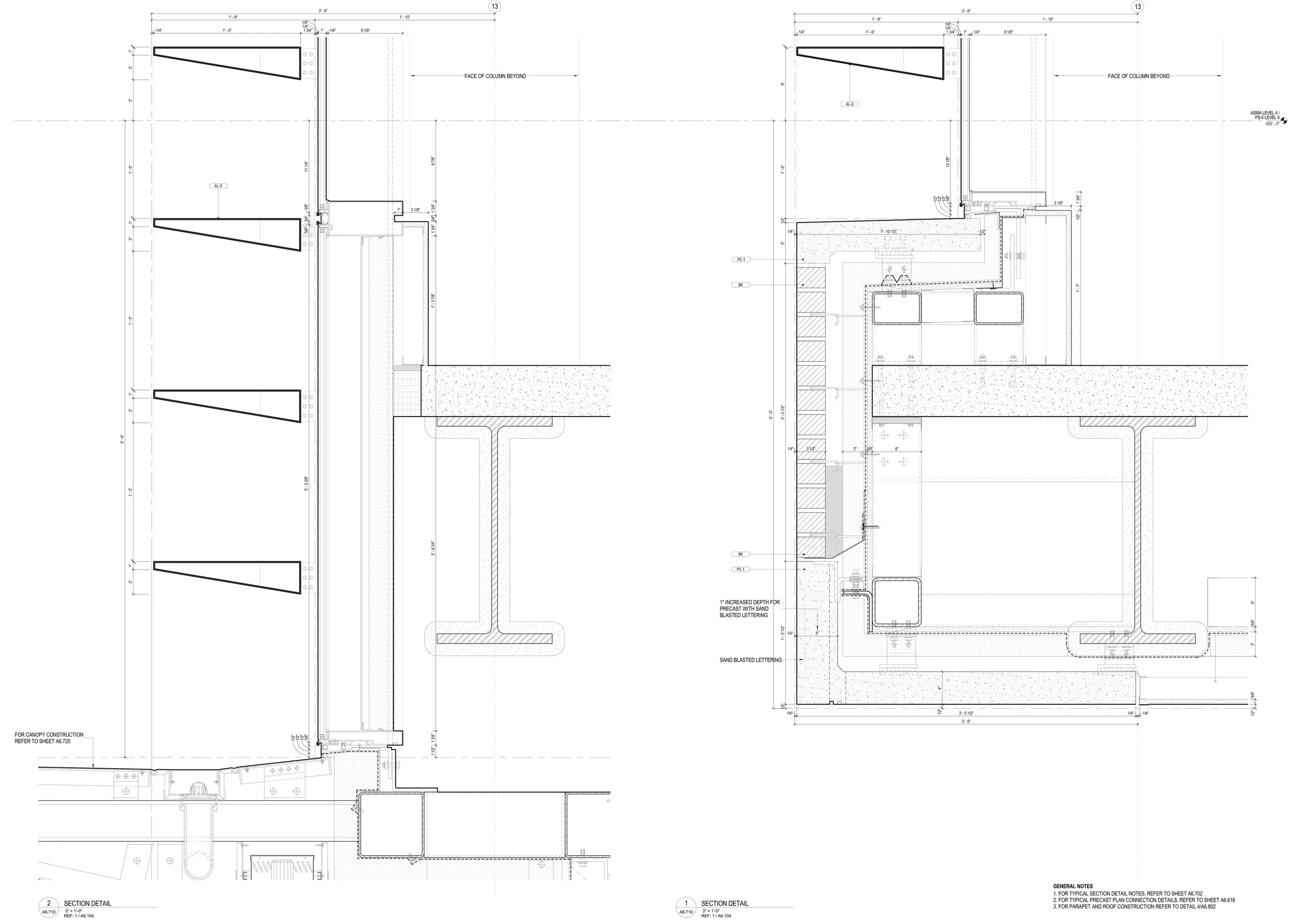
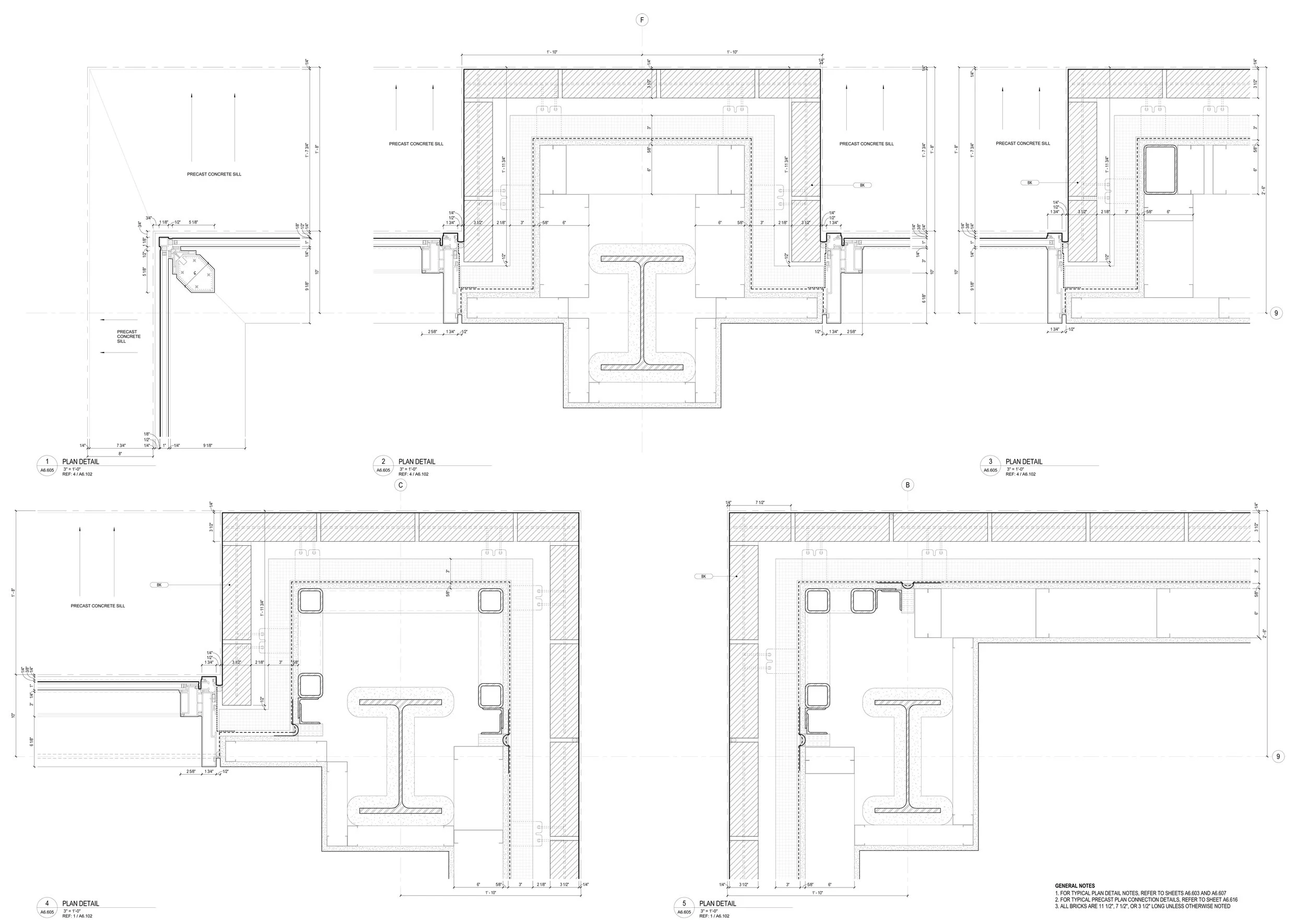
I served as a façade designer for the Design Development and Construction Documents phase of the project, cataloguing and detailing all exterior conditions of the building and site.  Challenges included seismic isolation of corners using a steel truss system to allow corner masonry zones to move independently of the main walls during an earthquake.  Precast concrete, located throughout the building, had to have gravity and lateral loads accounted for in structural steel.  Waterproofing conditions were numerous, including at stone ballast roofs, green roofs, paved terraces, and at the existing parking garage, upon which the addition was constructed.